REQUEST A TOUR If you would like to see this home without being there in person, select the "Virtual Tour" option and your agent will contact you to discuss available opportunities.
In-PersonVirtual Tour

$ 42
Active
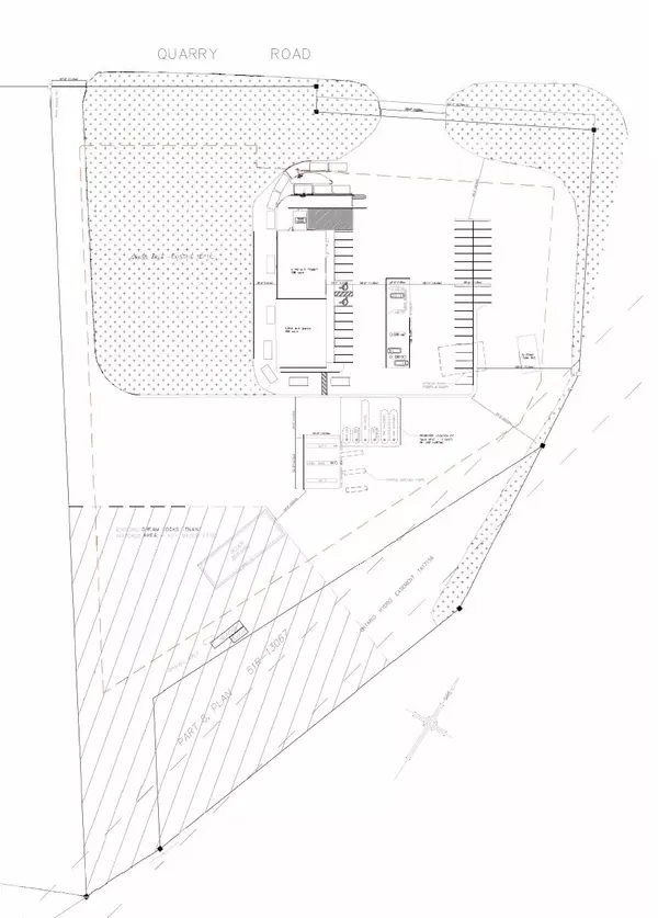
21 Quarry RD Tay, ON L0K 2C0
UPDATED:
Key Details
Property Type Commercial
Sub Type Commercial Retail
Listing Status Active
Purchase Type For Rent
Subdivision Rural Tay
MLS Listing ID S12293995
Tax Year 2025
Property Sub-Type Commercial Retail
Property Description
Prime Retail space available for development, offering up to 4,500 SF with flexible size options and multiple layout configurations. Ideal for a freestanding pad or a clip-on unit with drive-thru capability. Strategically located directly off Highway 400 on/off exit onto Quarry Road in Waubaushene adjacent to Esso gas station.
Location
Province ON
County Simcoe
Community Rural Tay
Area Simcoe
Zoning C4
Interior
Cooling No
Exterior
Community Features Major Highway
Utilities Available Available
Others
Security Features No
ParcelsYN No
Listed by QUBE PROPERTIES LTD
Nearby Locations






